Feuer- und Rauchschutzabschlüsse
1-flügelige Feuerschutztür mit Festelement
Feuer- und Rauchschutzabschlüsse
Feuer- und Rauchschutzabschlüsse
Feuer- und Rauchschutzabschlüsse

NovoFire® aluminium systems

Systems for doors and walls

NovoFire® aluminium profile frames are the perfect solution for modern property construction. With their elegant surface finishes, timeless design and numerous models, they offer virtually limitless possibilities for ambitious architects and planners when designing transparent fireproof and smokeproof seals in building interiors. Single and double leaf doors with fanlights and side parts offer numerous versatile combination options.

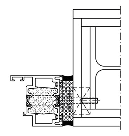
NovoFire® systems are particularly stable thanks to the profile wall thickness of 4 mm, and extremely compact thanks to the single fire resistant core that is anchored to the centre of the profile. This produces a uniform visible width of 150 mm for all models. Following numerous requests, an “anodized aluminium” surface finish that looks like stainless steel has been added to the range.

Your advantages at a glance!

Smoke leakage characteristics as per DIN 18095

Fire resistance classes T30 (EI2 30) / F30 or T90 (EI2 90) / F90 as per DIN 4102

Burglar resistance as per EN V1627 for T30 (EI2 30) doors in classes RC1 or RC2, optionally also available in RC3

Single or double leaf smokeproof/fire resistant doors can be combined with fixed elements with any sash bar spacing up to 4.0 m (F90) or 5.0 m (F30) in height

Overhead door closer, electric opener or panic functions as per EN 179 or EN 1125 can be integrated

All of the systems are identical in appearance, and the doors, side parts and fanlights can be combined at will

Flush fitting frame and door profiles

Numerous possible applications and maximum scope for design

Tubular frame doors with special features

Aluminium system technology

Assembly

Installing a tubular frame door

Click on the link on the left to watch a video explaining how to install tubular frame doors. This video clearly describes the individual assembly steps in detail, using a NovoFire(R) Alu T30 (EI2 30) as an example.

Numerous other animations / videos can be found on the Novoferm YouTube channel:

https://www.youtube.com/NovofermVideos/

Installation on cladded steel supports

T30 flush and smokeproof
Unrestricted choice between two installation methods:
• Push-through installation
• Weld-on installation
Smokeproof doors must always be sealed on both sides