Marcos de acero

Acogedor. Sólido. Individual.

Marcos fuertes que lo soportan todo.
Poder confiar en una calidad duradera no solo es tranquilizador, además ahora mucho dinero a largo plazo.

Como en otros temas centrales de la domótica (calefacción, sanitarios, electricidad), la calidad también es la medida de todas las cosas en el tema de los "marcos de las puertas".

Un buen marco de acero ofrece precisión dimensional, mantiene la hoja de la puerta en movimiento y puede quedarse cuando se cambie la hoja de la puerta. En Novoferm "un buen marco" es aquel que: queda ajustado para siempre, es robusto y sólido y lo soporta todo en el día a día.

Marcos de acero
Todas las ventajas

Alta estabilidad y duración

Amplia gama de marcos para todas las situaciones

Para montantes, mampostería y situaciones especiales

Prácticamente todas las variantes están disponibles también desmontadas

...

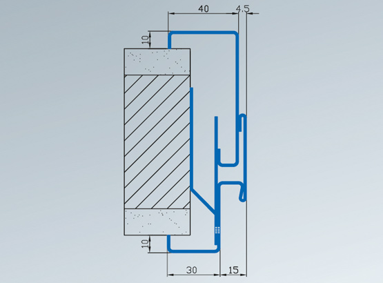
Marcos Novoferm para mampostería

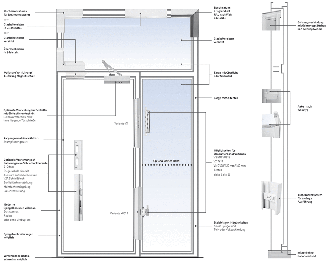
Sólido y de valor permanente – así es el tipo de construcción tradicional maciza. Así de sólidos son también los modernos marcos de acero para mampostería de Novoferm – ideal para todas las puertas. Los marcos estándar Novoferm (conformes con la norma DIN 18111) están disponibles en muchas variantes, equipados con sistemas especiales para el alojamiento de pernios muy diferentes.

Marcos Novoferm para montantes

La vida cambia y con ella las exigencias a los espacios de vivienda y de trabajo. Y entonces lo que cuenta es crear nuevos espacios y continuar evolucionando. Con los marcos para montantes Novoferm eso no es ningún problema, pues pueden ser instalados con el sistema de montaje rápido, fácil y exclusivo. Los marcos Novoferm son clásicos fuertes, modernos innovadores y especialmente seguros.

Marcos desmontados para todo tipo de paredes

Ya sea con renvalso simple, doble, decorativo o marcos con esquinas redondeadas, si el cliente lo solicita se puede suministrar muchas variantes de Novoferm desmontadas para facilitar la entrega rápida y el transporte fácil y seguro.

Las variantes de marco en stock pueden ser enviadas directamente al destinatario en muy poco tiempo vía servicio de paquetería. Por regla general al día siguiente si se efectúa el pedido antes de las 11:00 horas.

Con el nuevo anclaje trapezoidal el montaje de los perfiles dobles es ahora muy sencillo, rápido y seguro.

Logística optimizada para los marcos desmontados
Todas las ventajas

Desmontado en tres piezas manejables

Entrega como paquete compacto

Óptima protección contra el deterioro durante el transporte

Especialmente apto para el almacenamiento

Fácil transporte en un vehículo turismo

Envío rápido y económico

Fácil manejo en la obra