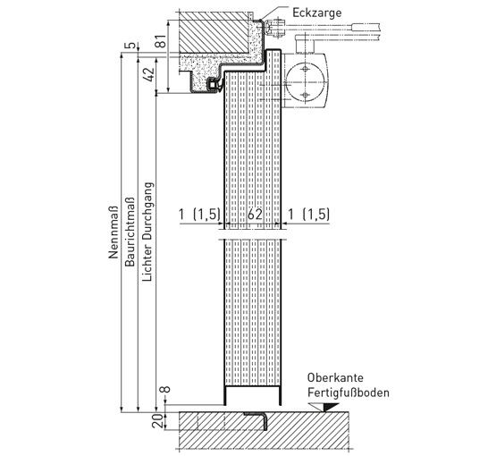
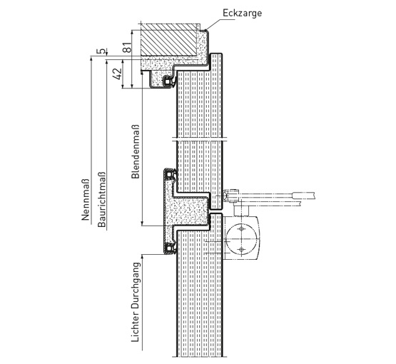
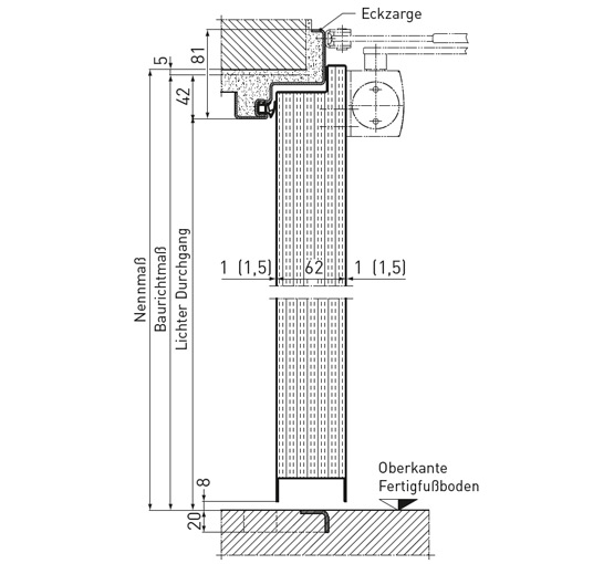
F60-A and F90-A lightweight partition walls have proven their capacity as indoor fire protection solutions that are quick, clean and flexible to install. The NovoPorta Premio T30 door system specifically for installation walls allows doors and frames to be installed just as quickly, easily and cleanly. The system comprises the attractive NovoPorta Premio steel door with its host of high quality features and the 2140B two-part frame profile.
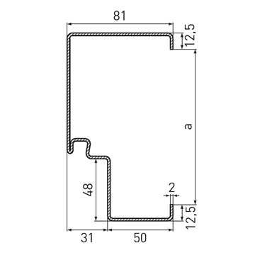
One major advantage is the approved use of Novoferm fire protection foam and loose mineral wool* to backfill the frames. According to the approval, only the rebate section on the front skin must be backfilled, while the special 2140B counter skin can be left empty. The requisite mineral wool is usually already available on site. The 2140B frame profile can also be classically backfilled with gypsum plasterboard strips for Premio variants with T90 approval.
The entire system has been tested to EN 1634 and is building code approved as per DIN 4102. It also satisfies the requirements of the future European product standard EN 16034.
T30 and T30 / smokeproof models are available in numerous standard sizes and throat openings from stock, as are the special installation kits for F60-A /F90-A walls. Together with the practical sliding anchors and self-tapping screws for UA profiles, they measurably reduce the time needed for installation.
* Minimum density 40 kg/m³, melting point > 1,000°C, building material class A1 / Euroclass A1