NovoPorta Plano fire resistant doors

Novoferm’s NovoPorta Plano fire resistant doors with flush closing door panels are available in fire resistant class T30 (EI2 30) for indoor use.

Your advantages at a glance!

Single and double fire resistant steel door units for indoor use

Fire retardant – tested to EN 1634-1 and building code approved as per DIN 4102

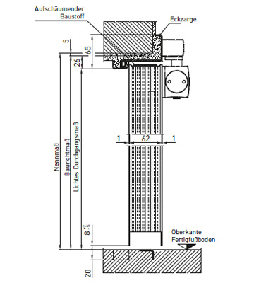
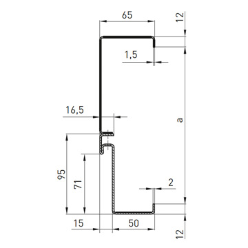
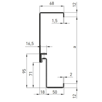
Flush closing door panel, 64 mm thick, 1.0 mm sheet metal

Door leaf and frame galvanized and primed (powder-coated) similar to RAL 9016

Features

Assembly

Look good in any surroundings, quickly installed in lots of walls!

Quite simply, a NovoPorta Plano always looks good. Due partly to the wide choice of surface finishes and colours ranging from RAL of choice and Super Dekor wood laminates to design laminate coatings. But also due to the standard omission of a floor recess on the Plano, which makes it ideal, for example, for drywall construction or for waiting to fit the door until construction has progressed. Which significantly reduces the risk of damage.

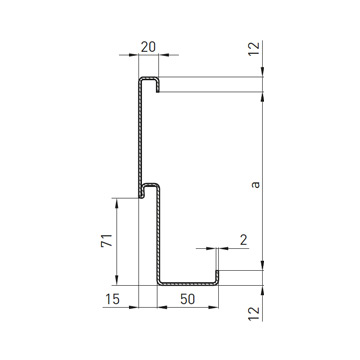
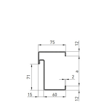
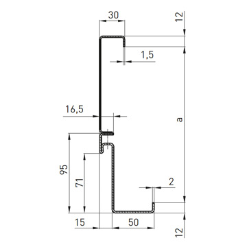
What is the point of choosing the most attractive door design only to have it – or even the floor and walls – damaged due to complicated installation procedures? NovoPorta Plano is the perfect option, offering a choice of installation procedures that are all fast, simple and clean. Depending on the type of wall, rebate bolt mounting in combination with a corner frame can be used, or a two-part 2240B wrap-around frame, for example. The latter consists of a corner frame and special 2240B counter skin. What makes it so clever is that the corner frame can even be retrofitted with the counter skin.

The structure can be backfilled – quickly and cleanly – with loose mineral wool* and Novoferm fire protection foam, or conventional mortar. This procedure is particularly fast when using two-skinned frames such as the 2240B as the counter skin can remain empty; only the corner frame has to be backfilled. In some cases, a 2240B frame profile may not actually need to be backfilled at all – and is still tested to EN 1634 with building code approval as per DIN 4102.

* Bulk density min. 40 kg/m³, melting point > 1,000 °C, building material class A1, DIN 4102-1 / DIN 4102-4

Technology